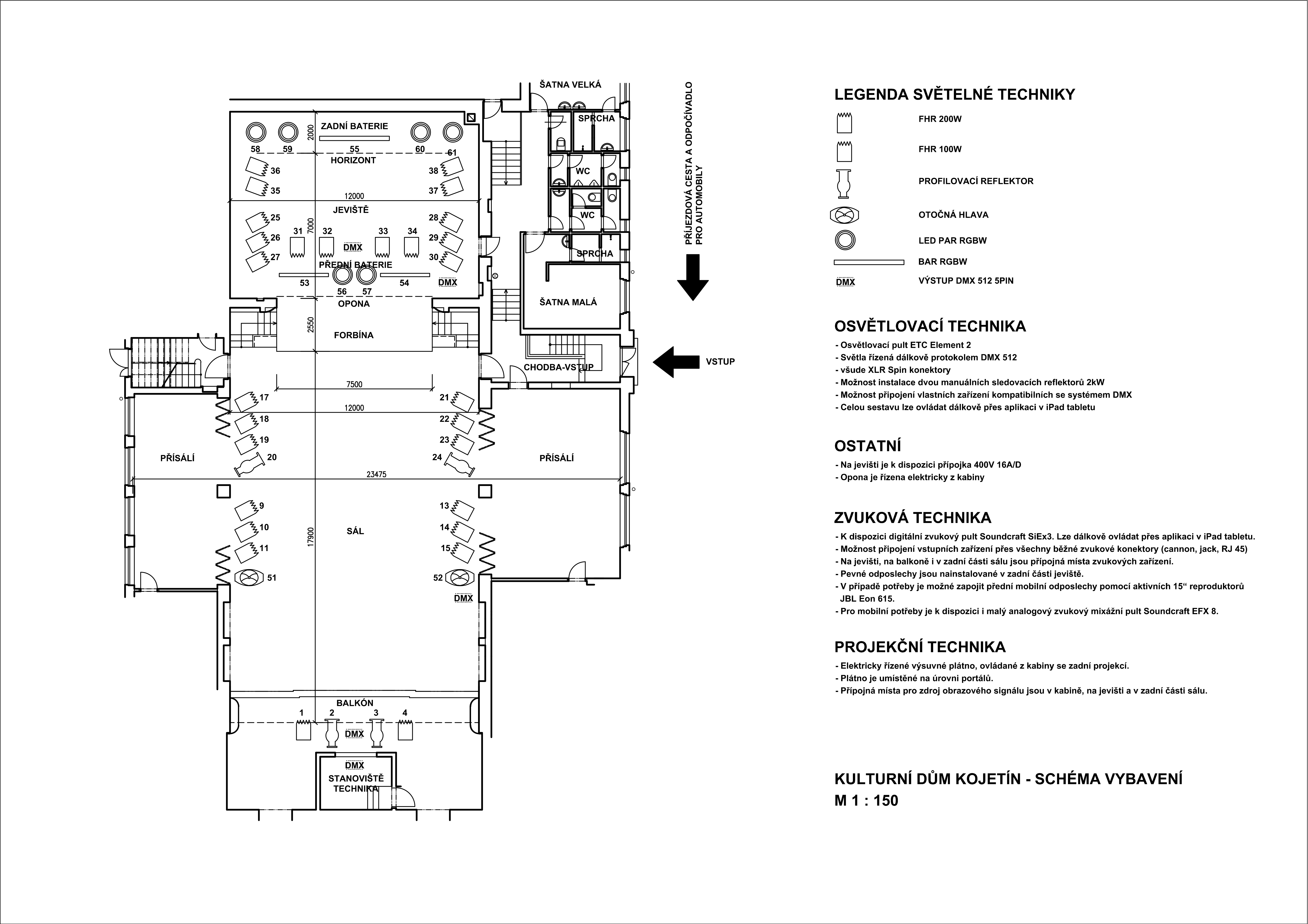
Městské kulturní středisko Kojetín https://www.technis.kojetin.cz/pronajem-prostor Stáhnout Typ souboru: pdf